
Vista da fachada principal, voltada para a Av. Marquês de São Vicente


Vista do pátio interno

Vista do auditório, a partir do pátio interno

Vista interna do auditório e sua conexão com o pátio da edificação

Corte 3d que ilustra a relação entre o pátio interno e o auditório

Térreo

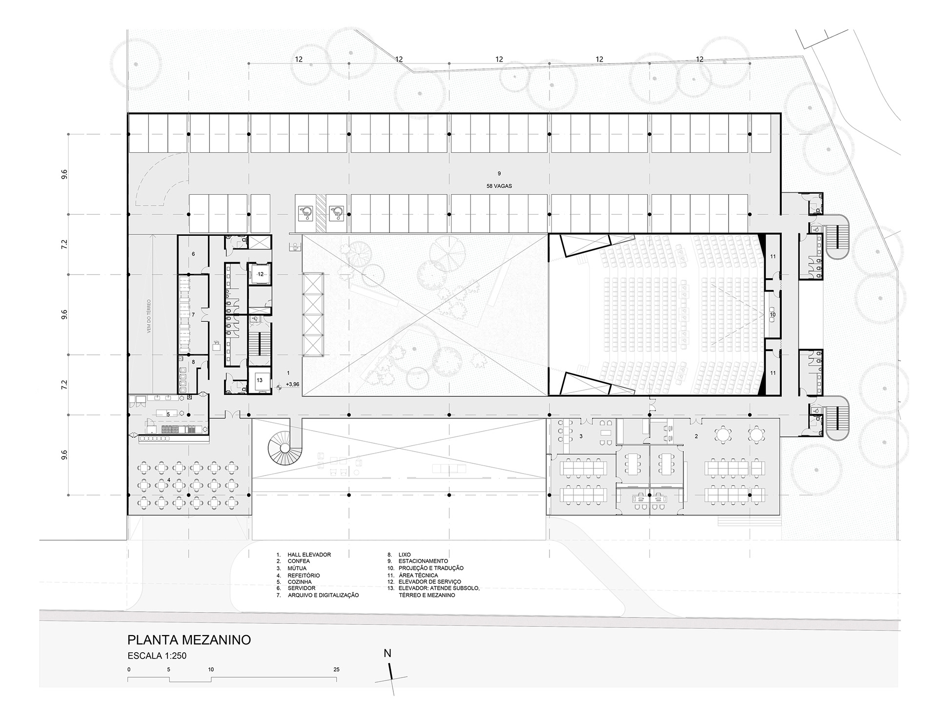
Mezanino

1º Pavimento

2º Pavimento

Diagrama geral

Diagrama construtivo

Diagrama de sustentabilidade

Atendimento pleno à legislação edilícia de São Paulo

Atendimento pleno à legislação edilícia de São Paulo - Quota Ambiental